Manhole Sewage Pipe Cleaning Robot - 1
It is the product which has highest demand in the society to solve inhuman scavenging. The product provides cost effective solution to the current problems are faced by the common man in our country. Tending to the conventional practices of manual scavenging, the proposed invention relates to building up of solution to manual practices through mechanical framework to propose arrangement through development by foreseeing the event of blockage before it occurs with help of sensors in manholes and produce a Computational Intelligence based need answer to address the manhole blockage, through automation in addition manual robot setup, which goes into the manhole framework and also the sewer funnels, bore any sort of blockage and expels the waste.
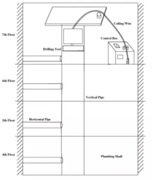
Vertical Sewage Pipe Cleaning Robot - 1
These products can be used in tall buildings where sewer pipes are used. It can travel vertically inside the pipe removing the scales and any type of blockages. It can be used in IT parks, apartments, household applications, complex, malls and any place where sewer pipes are involved.
Horizontal Sewage Pipe Cleaning Robot - 1
These products can be used in clearing blockages in horizontal sewer pipes. It can drill and remove any kind of blockage has high market in IT parks, apartments, household applications, complex, malls and any place where sewer pipes are involved.